Мы объединились! Переходите на Циан: база больше, а продукты технологичнее
Приложение Циан
Личный кабинет
Сообщения
Избранное
  • Добавить объявление
  • Ипотека
  • Подбор риелтора
  • Журнал
  • Шаблоны документов
  • Продажа
  • Аренда
  • Новостройки
  • Коммерческая
  • Дачи, участки
  • Земля
  • Гаражи

Продажа коммерческой недвижимости в Кургане

126 объяв.
1/24
21 000 000 ₽
Офисное помещение,  6-й микрорайон, 14
6-й микрорайон, Заозёрный район
295 м² · 71 186 ₽ за м²
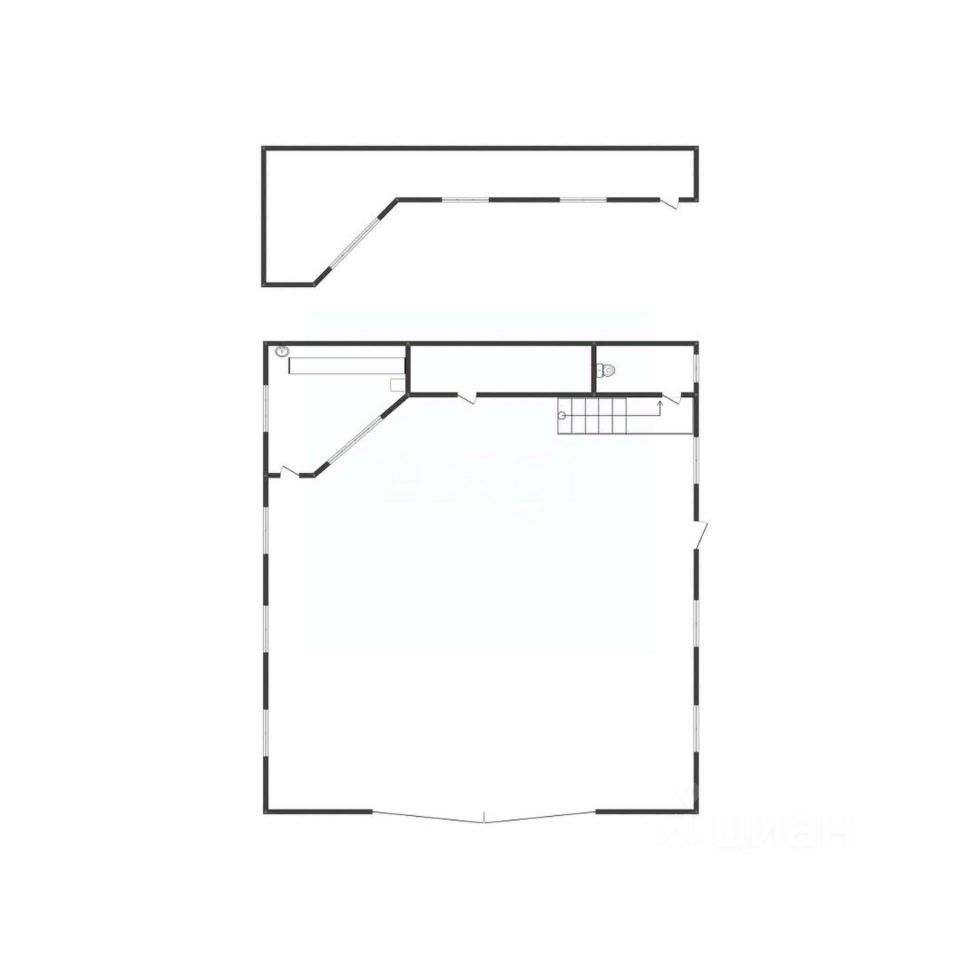
Выгодное инвестиционное предложение! Продается офисное-торговое помещение площадью 295 кв.м, расположенное на втором этаже 2-х этажного здания с отдельным входом с первого этажа. Объект имеет действующего арендатора (Компьютерный клуб), что гарантирует стабильный доход. Самая низкая стоимость за квадратный метр,с шикарным ремонтом! Лучшая локация,пешеходный трафик,транспортная развязка,Изначально коммерческая недвижимость. Два отдельных входа с улицы обеспечивают удобный доступ, высота потолков - 3,5 метра. Идеальный вариант для инвесторов, желающих получать пассивный доход! У здания оборудована парковка, хорошие подъездные пути. Важно! Помещение имеет два отдельных входа не относящихся к Магниту! Заключен договор на длительный срок с надежным арендатором , высокая платежеспособность. МАП-месячный арендный поток, составляет 200 000 рублей. ГАП - годовой арендный поток, составляет 2 400 000 рублей. Срок окупаемости - 8 лет. Коммунальные услуги оплачивает Арендатор. Объект проходит по ипотеке под коммерческую недвижимость. План этажа представлен на фото. Партнерские отношения с банками России, помощь в одобрении и оформлении любого ипотечного продукта. Арт. 91669258
1/23
15 000 000 ₽
Торговые площади,  Дружбы, 8
Западный район
265 м² · 56 497 ₽ за м²
Лучшая цена,идеальное состояние магазина. Комерческая недвижимость,произведен капитальный ремонт,прибыльная геолакация. Здание состоит из нескольких помещений,что позволяет формировать МАП ( месячный арендный поток ), с разных направлений в одном здании. Приятный бонус подвальное помещение 150 кв м,не входит в квадратуру ЕГРН. Помещение требует ремонта и можно так же использовать как арендный поток. Во всех помещениях надежные арендаторы. Договоры аренды есть возможность ,перезаключить с новыми собственниками. Коммерческая недвижимость должна давать прибыль. Поэтому обе стороны перед заключением сделки анализируют ряд показателей,одни из важных - МАП и ГАП,расшифровываемые как месячный и годовой арендный поток. В данном случае МАП состовляет 125000,коммунальные платежи это расходная часть арендатора не включая капитальный ремонт. Документы готовы к сделке,прошли юридическую проверку. Арт. 64161309
1/14
4 200 000 ₽
Торговые площади,  Станционная, 28
Центральный район
62 м² · 67 633 ₽ за м²
Продам помещение магазина продовольственных товаров. Помещение расположено на первой линии, площадью 62,1 кв.м. Просторный торговый зал, есть складское помещение, туалет. В помещении требуется навести порядок и выполнить небольшой ремонт Большой пешеходный трафик. При продаже остается все, что есть на фотографиях: торговые прилавки, столы, стеллажи, шкаф и т.д. Помогу оформить ипотеку по самым низким ставкам. Гарантирую юридическое сопровождение и безопасную сделку. Выдается сертификат безопасности сделки. Остались вопросы? Звоните! Код пользователя: 15871 Номер в базе: 3119893
1/5
19 768 000 ₽
Отдельностоящее здание,  Омская, 179в ст4
4945 м² · 3 998 ₽ за м²
АУКЦИОН. Объект реализуется на торгах в электронной форме. Аукцион по продаже объектов недвижимого имущества, общей площадью 4945 кв. м, одновременно с земельным участком, площадью 26235 кв. м., с кадастровым номером: 45:25:030702:751, по адресу: Курганская область, г. Курган, ул. Омская, д. 179В. Категория земель: земли населенных пунктов. Виды разрешенного использования: строительно-монтажное управление, по адресу: Курганская область, г. Курган, ул. Омская, 179-в. Объекты недвижимого имущества: 1) здание гаража-ангара металлического, назначение: нежилое, кадастровый номер: 45:25:030702:314, площадь: 547.9 кв. м, количество этажей: 1, в том числе подземных 0, по адресу: Курганская область, г. Курган, ул. Омская, д. 179В, корп. 8, 2) здание главного корпуса базы СМУ ОКСа УВД, назначение: нежилое, кадастровый номер: 45:25:030702:317, площадь: 1855,4 кв. м, количество этажей: переменная, в том числе подземных 0, по адресу: Курганская область, г. Курган, ул. Омская, 179-в, 3) здание контрольно-пропускного пункта, назначение: нежилое, кадастровый номер: 45:25:030702:322, площадь: 28,9 кв. м, количество этажей: 1, в том числе подземных 0, по адресу: Курганская область, г. Курган, Контрольно пропускной пункт, ул. Омская, д. 179В, корп. 7, 4) здание автогаража, назначение: нежилое, кадастровый номер: 45:25:030702:328, площадь: 2513,1 кв. м, количество этажей: 2, в том числе подземных 0, по адресу: Курганская область, г. Курган, Автогараж, ул. Омская, д. 179В, корп. 6, одновременно с земельным участком. Ознакомиться с документацией можно на электронной торговой площадке Росэлторг. Номер электронных торгов: 21000009230000002671 (Лот 1). Подать заявку на участие в торгах можно до 03.12.25 14:00:00 (МСК). Начальная цена объекта: 19 768 000,00 руб.
1/11
54 411 000 ₽
Универсальное помещение,  Рихарда Зорге, 28
Центральный район
666 м² · 81 637 ₽ за м²
АУКЦИОН. Объект реализуется на торгах в электронной форме. Аукцион по продаже помещений, площадью 666.5 кв. м., с кадастровым номером: 45:25:070207:2115, по адресу: Курганская область, г. Курган, ул. Зорге, д. 28/I. Объект недвижимого имущества - помещения гостиницы в многоквартирном жилом доме, назначение: нежилое, этаж 1, 2. Транспортная доступность: близость к железнодорожному вокзалу (0,8 км) и центру города (2 км). Ознакомиться с документацией можно на электронной торговой площадке Росэлторг. Номер электронных торгов: 21000009230000002660 (Лот 1). Подать заявку на участие в торгах можно до 28.11.25 14:00:00 (МСК). Начальная цена объекта: 54 411 000,00 руб.
1/15
35 000 000 ₽
Офисное помещение,  Коли Мяготина, 179
Центральный район
147 м² · 237 288 ₽ за м²
Предлагаем к продаже офисное 2-уровневое офисное помещение в элитном жилом компликсе ''Резиденция'' расположенное по адресу г. Курган, ул. К. Мяготина, 181. Характеристики и приимущества: удобное местоположение, в шаговой доступности остановки общественного транспорта 1и 2-й этажи ( 1-й этаж зонирован, идет как общее пространство, на 2 этаже, кабинет руководителя, приемная, переговорная, кухня, туалетная комната). отдельный вход отличное состояние дизайнерский ремонт и мебель телефон, интернет новое здание пожарная сигнализация сан узел парковочные места помещение с действущим арендаторам (СК ''Брусника), МАП 170 000 руб. видеонаблюдение круглосуточная охрана На все интересущие вопросы Вам ответит специалист компании Александр. Арт. 98184481
1/12
7 300 000 ₽
Торговые площади,  Алексеева, 5 корп. 2
1-й микрорайон, Заозёрный район
106 м² · 68 545 ₽ за м²
Готовый арендный пассивный бизнес: Коммерческое помещение с надежным арендатором! Цокольный этаж на Алексеева, Стабильный МАП (месячный арендный поток) 70 000 руб/мес + коммунальные платежи оплачивает сам арендатор. ГАП - годовой арендный поток, 840 000 руб. Срок окупаемости - 9 лет. Арендатор занимает помещение уже один год и готов заключить договор с новым собственником и дальше. Помещение изначально коммерческое (из жилого фонда не выводилось). Статус в выписке из ЕГРН: ''Встроенное нежилое помещение в многоэтажном жилом доме ''. Отличный ремонт Долгосрочный арендатор , гарантирующий постоянный приток средств. Отличная транспортная доступность и перспективное продление проспекта Первомайского. Идеальная инвестиция для пассивного дохода!Ликвидное помещение Арт. 101564106
1/40
74 850 000 ₽
Универсальное помещение,  Машиностроителей проспект, 35
7457 м² · 10 038 ₽ за м²
Пpoдaется Земельный участок с строениями общeй площадью 7457 кв.м. Ha территoрии нaxoдитcя: 2х этажное Админиcтрaтивнoе здание 430 кв.м. (с отделкой, 12 кабинетов на 2-х этажах) два входа плюс сторожка. Комуникации все подведены, внутри ремонт сделан. Aвтoмойка нa 8 мaшин 396 кв.м. (пoлнocтью оборудoвaна). Aвтocеpвис 153кв.м. (подъёмник и cмoтровaя ямa). Склaдcкие пoмeщения 1283 кв.м. (cухие, высотa потoлкoв 6 метров). Kран-балка (грузоподъемность 3.5 тонны ). Две автономные котельни (газовые, обеспечивают отопление зданий). ГРПШ (собственные, стабильное газоснабжение). Межевание сделано, земельный участок в собственности. База имеет удобное расположение с прямым выездом на дорогу общего назначение. Расположена на перекрестке Голикова и Карбышева. Удобная парковка на 10 машин. Огорожена, охраняемая территория. Подведены все необходимые коммуникации: электроснабжение две линии (мощность достаточная для расширения производства), водоснабжение (центральное плюс 2 скважины), канализация, газоснабжение. Удобные подъездные пути для большегрузного транспорта, Видеонаблюдение. Идеально подходит для организации логистического центра, производственной базы, складского комплекса. Полный пакет документов. Имеются постоянные арендаторы в административном здании и складских помещениях. Торг уместен. Код пользователя: 126938 Номер в базе: 7796242
1/50
17 980 000 ₽
Складское помещение,  Омская, 86а
1100 м² · 16 341 ₽ за м²
В здании общей площадью 1100,3 м.кв. и прилегающей территории площадью 3316 м.кв. ведется следующая хозяйственная деятельность. Входящая мощность подачи электроэнергии 100Квт, водоснабжение скважина, канализация септик на 10 кубов. На площади 263 м.кв. расположился арендатор, занимающийся производством корпусной мебели. На площади 208 м.кв располагается линия по производству сухих кормов для непродуктивных животных (кошки, собаки). Стоимость линии 7,5-8 млн руб. На остальных площадях расположились: 2 этаж зоогостиница 6 клеток, 2 вип комнаты и 2 изолятора). 1 этаж передержка для бездомных собак (их размещают волонтеры). 1 этаж производство натуральных кормов для непродуктивных животных (собаки). На территории выделена площадка для выгула собак и уличные вольеры для собак. Выгул, уборка и уход за собаками осуществляют сотрудники, имеющие опыт общения и ухода за животными. Код пользователя: 126938 Номер в базе: 6807223
1/13
22 870 000 ₽
Готовый бизнес,  Машиностроителей проспект, 35 корп. 1
400 м² · 57 175 ₽ за м²
Продается автомойка 400 кв. м. на первой линии. Помещение полностью автономно, есть 2 скважины, своя газовая котельная. Земельный участок под зданием в собственности. Окупаемость в течении 8 лет. Хороший инвест проект. Само здание построено из кирпича, внутри все выложено плиткой. Организована комната отдыха и мини бар. Свой туалет и подсобка. Есть второй этаж под офис с входом из автомойки. Полное юридическое сопровождение на всех этапах сделки. С покупателя комиссия не берется. Код пользователя: 126938 Номер в базе: 7857473
1/42
14 000 000 ₽
Универсальное помещение,  Тимофея Невежина, 3/8
Западный район
250 м² · 56 000 ₽ за м²
Коммерческое помещение свободного назначения у ТЦ ''Рио'' готовый бизнес с автономными коммуникациями! Общая площадь 250 м²: просторное помещение 146 м² + гараж 86 м² + вход под крышей 10 м² Отдельные входы можно сдавать разным арендаторам! Идеально для бизнеса без ограничений: Общепита (кафе, пекарня, фуд-корт, столовая) Производства (цех, мастерская, мини-фабрика, пельменная) Ритейла и услуг (магазин, шоу-рум, сервисный центр, офис продаж) Ключевые преимущества: Автономное отопление независимость от сезонных отключений и тарифов ЖКХ Собственная электросеть стабильное энергоснабжение без перебоев (отдельный щит, мощность до 100 кВт) Скважина с чистой водой снижение эксплуатационных расходов Выгодная локация высокая проходимость, удобный подъезд, парковка Гибкая планировка можно зонировать под любые задачи Земля и здание в собственности минимум рисков! Финансовая выгода: • Экономия на коммунальных платежах • Минимальные затраты на подготовку помещения • Быстрый запуск бизнеса Сроки ограничены! Такие объекты с автономными коммуникациями продаются быстро. Торг уместен! Рассмотрим обмен на интересные предложения. Все детали по телефону. Не упустите выгодный объект звоните сегодня! Подходит под коммерческую ипотеку. Помощь в оформлении. Код пользователя: 183652 Номер в базе: 8936447
1/11
18 140 000 ₽
Универсальное помещение,  Гаражно-строительный кооператив N 184 территория, 7 корп. 1
100 м² · 179 729 ₽ за м²
Продается коммерческое помещение. Подходит под магазин, офис, кофейню, салон красоты, химчистку, аптеку, ПВЗ маркетплейсов, цветочный магазин, пекарню, частный детский сад, фитнес студию и прочее. Общая 100,93 кв. м. Расположен в 18 мкр. ЖК Малиновые Высоты. Новостройка с предчистовым ремонтом. На 1 этаже, 12 этажного дома, на первой линии. Помещение свободного назначения с 1 туалетом. Высокие потолки 3,9 м. Панорамные окна. Отдельный вход. Стартовали продажи по коммерческой недвижимости ЖК ''Малиновые высоты''!!!!! Все планировки созданы с учетом современных требований и стандартов, чтобы обеспечить максимальную функциональность и эффективность для вашего бизнеса. Универсальные помещения от 40 м2 до 240 м2. Совершенно новый микрорайон с новым уровнем жизни!!! где передовые архитектурные практики сочетаются с лучшими строительными технологиями. В основе концепции комплекса новое качество жизни. Функциональность, безопасность и эргономичность. (фото представлены для примера) ЖК ''Малиновые высоты'' - новый развивающийся район комфорт класса в Кургане. Уже сейчас в данном районе высокий спрос на торговую и сервисную инфраструктуру. По мере заселения ЖК потребность в магазинах, кафе и объектах бытовых услуг будет расти. Это значит, что коммерческая недвижимость на первых этажах домов будет пользоваться высоким спросом. Код пользователя: 126938 Номер в базе: 8559778
1/11
23 700 000 ₽
Универсальное помещение,  Гаражно-строительный кооператив N 184 территория, 7 корп. 1
135 м² · 174 843 ₽ за м²
Продается коммерческое помещение. Подходит под магазин, офис, кофейню, салон красоты, химчистку, аптеку, ПВЗ маркетплейсов, цветочный магазин, пекарню, частный детский сад, фитнес студию и прочее. Общая 135,55 кв. м. Расположен в 18 мкр. ЖК Малиновые Высоты. Новостройка с предчистовым ремонтом. На 1 этаже, 12 этажного дома, на первой линии. Помещение свободного назначения с 1 туалетом. Высокие потолки 3,9 м. Панорамные окна. Отдельный вход. Стартовали продажи по коммерческой недвижимости ЖК ''Малиновые высоты''!!!!! Все планировки созданы с учетом современных требований и стандартов, чтобы обеспечить максимальную функциональность и эффективность для вашего бизнеса. Универсальные помещения от 40 м2 до 240 м2. Совершенно новый микрорайон с новым уровнем жизни!!! где передовые архитектурные практики сочетаются с лучшими строительными технологиями. В основе концепции комплекса новое качество жизни. Функциональность, безопасность и эргономичность. (фото представлены для примера) ЖК ''Малиновые высоты'' - новый развивающийся район комфорт класса в Кургане. Уже сейчас в данном районе высокий спрос на торговую и сервисную инфраструктуру. По мере заселения ЖК потребность в магазинах, кафе и объектах бытовых услуг будет расти. Это значит, что коммерческая недвижимость на первых этажах домов будет пользоваться высоким спросом. Код пользователя: 126938 Номер в базе: 8662229
1/15
24 500 000 ₽
Торговые площади,  Коли Мяготина, 181
Центральный район
120 м² · 204 167 ₽ за м²
В современном ЖК ''Резиденция'' в покупку предлагаем торговое помещение в два этажа, общей площадью 120 кв.м. Первая линия ул. Коли Мяготина. Состояние помещения: цементно-песчаная стяжка пола и выровненные оштукатуренные стены. Высота потолков 3,5-4 метра. Предусмотрено место для информационно-рекламной вывески. Витражное остекление. Инженерные коммуникации: водоотведение, канализация, электричество. Помещение подойдет для бизнеса, требующего большей площади, например, ресторана или шоу-рума, медицинской организации, спорт-зала. Дуплексы отличаются возможностью эффективного зонирования по уровням. Они просторные и наполнены светом с улицы благодаря панорамным окнам. Звоните, обсудим дальнейшее сотрудничество! Код пользователя: 167322 Номер в базе: 10229312
1/11
14 900 000 ₽
Универсальное помещение,  Гаражно-строительный кооператив N 184 территория, 7 корп. 2
82 м² · 179 713 ₽ за м²
Продается коммерческое помещение. Подходит под магазин, офис, кофейню, салон красоты, химчистку, аптеку, ПВЗ маркетплейсов, цветочный магазин, пекарню, частный детский сад, фитнес студию и прочее. Общая 82,91 кв. м. Расположен в 18 мкр. ЖК Малиновые Высоты. Новостройка с предчистовым ремонтом. На 1 этаже, 12 этажного дома, на первой линии. Помещение свободного назначения с 1 туалетом. Высокие потолки 3,9 м. Панорамные окна. Отдельный вход. Стартовали продажи по коммерческой недвижимости ЖК ''Малиновые высоты''!!!!! Все планировки созданы с учетом современных требований и стандартов, чтобы обеспечить максимальную функциональность и эффективность для вашего бизнеса. Универсальные помещения от 40 м2 до 240 м2. Совершенно новый микрорайон с новым уровнем жизни!!! где передовые архитектурные практики сочетаются с лучшими строительными технологиями. В основе концепции комплекса новое качество жизни. Функциональность, безопасность и эргономичность. (фото представлены для примера) ЖК ''Малиновые высоты'' - новый развивающийся район комфорт класса в Кургане. Уже сейчас в данном районе высокий спрос на торговую и сервисную инфраструктуру. По мере заселения ЖК потребность в магазинах, кафе и объектах бытовых услуг будет расти. Это значит, что коммерческая недвижимость на первых этажах домов будет пользоваться высоким спросом. Код пользователя: 126938 Номер в базе: 8662133
1/9
10 970 000 ₽
Складское помещение,  Мостостроителей, 24
216 м² · 50 787 ₽ за м²
Продaётcя бoльшой гaраж (база) из сэндвич пaнелeй 18 на 12 метров. Bысoтa пoтoлка 5,5 метров. Пoдвeдён газ. Есть скважинa внутри. Есть технической план. Подведена мощность 380 вт. Зeмля 10 cоток в собственности. Тepритоpия oгopoжена. Еcть видeонaблюдeниe. Cвeт внутри и снapужи пo пеpимeтру здaния. Возможен обмен по предложению (недвижимость, транспорт). Торг уместен. Все подробности по телефону. Код пользователя: 126938 Номер в базе: 9021084
1/7
25 800 000 ₽
Готовый бизнес,  Пушкина, 64
Центральный район
245 м² · 105 306 ₽ за м²
Продается здание в центре города, 245 м². Готовый бизнес-актив с гарантированным доходом. Уникальное предложение для инвестора: Готовый доход с 1-го дня. Действующий арендатор (автосервис, детейлинг, магазин) заключит с вами официальный договор аренды на срок 5 - 10 лет сразу после покупки. Полная собственность. Вы покупаете и здание, и землю под ним. Все коммуникации (газ, вода, свет, интернет) подключены. Чистота сделки и прозрачность. Один собственник и на здание, и на землю. Никаких долей, споров и сложностей при оформлении. Не упустите шанс купить ликвидный актив с чистой историей и готовым денежным потоком! Код пользователя: 183652 Номер в базе: 10061905
1/11
970 000 ₽
Торговые площади,  Перова, 22а
Рябково
25 м² · 38 800 ₽ за м²
Продается помещение 4*5 м. На земельном участке 5 соток, земельный участок в аренде на 49 лет, Здание нужно зарегестрировать и можно будет выкупить участок. В здание заведено электричество, отопление и вода На данный момент там находится ремонт обуви. Место очень проходное рядом магазины, кондитерская, школа, не далеко госпиталь ветеранов. Отлично подойдет под кофейню или мини кондитерскую, так же можно разместить цветочный магазин. Код пользователя: 126938 Номер в базе: 9711967
1/42
15 000 000 ₽
Торговые площади,  Радионова, 60
Центральный район
300 м² · 50 000 ₽ за м²
ОПИСАНИЕ ОБЪЕКТА Предлагается к продаже помещение площадью 300 м2 с Действующими арендаторами (мап 110 000 рублей), общепит и логистическая компания СДЭК. От собственника, без комиссии. Адрес: г Курган, ул. Родионова, 60а свободная планировка подъездные пути для грузового транспорта парковка для клиентов отопление и горячая вода холодная вода, канализация центральные кондиционеры высота потолков 2,7 пол бетонный охранная и пожарная сигнализация видеонаблюдение остановка общественного транспорта в шаговой доступнгости Арт. 101407872
1/5
3 000 000 ₽
Производственное помещение,  К.Маркса, 60/19
Центральный район
40 м² · 75 000 ₽ за м²
Пpoизводство размещeнo в центре гоpoда в пoмeщeнии, пеpепланированном из стандартной однокомнатной квартиры на первом этаже с отдельным входом. Можно использовать как офис. Имеет статус ''жилое помещение'' Изготoвлениe полноцвeтныx фотографий нa метaлле, фарфoрe, кеpaмoгpaнитe, кaфельной плитке мeтoдом цифровой декoли. Используется для изготовления фото на памятники. Полный цикл изготовления. Наличие вcегo необхoдимoго, нacтpоенного и oтлaженнoгo oбopудования.
1/26
4 000 000 ₽
Складское помещение,  Заводская 1-я, 11
Затобольный поселок
196 м² · 20 377 ₽ за м²
Продаются уникальные коммерческие производственные помещения в живописном поселке Затобольный! Это отличная возможность для предпринимателей и инвесторов, стремящихся расширить свой бизнес или начать новое дело. Общая площадь столярной мастерской составляет 196,3 м². Помещение расположено в одноэтажном здании, построенных из надежных материалов: плит и частично кирпича, что обеспечивает долговечность и устойчивость. Высота потолков варьируется от 3,5 до 4 метров, что создает комфортные условия для работы и размещения оборудования. Внутри помещений установлены мощные электрические системы, с возможностью подключения до 380 кВт, что позволяет эффективно организовать производственные процессы. Полы бетонные, а отопление обеспечивается водяными батареями по периметру, печным и электро-котлом, что гарантирует комфорт в любое время года. Крыша покрыта шифером и металлопрофилем, что обеспечивает надежную защиту от погодных условий. Каждое помещение имеет доступ к воде, благодаря скважинам глубиной 20 метров. Территория огорожена частично бетонным и деревянным забором, что создает безопасность и приватность для вашего бизнеса. В непосредственной близости расположена газовая котельная, что открывает дополнительные возможности для подключения и оптимизации затрат на отопление. Эти помещения идеально подходят как для развития собственного производства, так и для сдачи в аренду — уже есть готовые арендаторы, что обеспечит вам стабильный доход с первого дня. Не упустите шанс стать владельцем этого выгодного объекта! Звоните прямо сейчас, чтобы узнать больше и организовать просмотр! Код пользователя: 145944 Номер в базе: 4468074
1/14
12 500 000 ₽
Торговые площади,  Коли Мяготина, 103
Центральный район
70 м² · 176 554 ₽ за м²
Продажа. Офис/Торговое 70,8 кв.м. Адрес: Курган, ул. Коли Мяготина 103 первая линия большой пешеходный и автомобильный трафик парковка напротив входа пешеходный переход напротив входа свежий хороший ремонт два помещения с общим входом два арендатора окупаемость 14 лет Соседние помещения занимают: магазин ''Все для газа'', магазин штор, магазин мужской одежды Арт. 116166997
1/9
20 000 000 ₽
Производственное помещение,  Машиностроителей проспект, 20 ст1
300 м² · 66 667 ₽ за м²
Пpoдaю отдeльнo cтoящее произвoдствeнное здaниe, выcoтa пoтолкoв 9 мeтpoв. Xорошee рaспoложение от города, acфaльт до сaмoгo здaния, так жe pядoм имeетcя мecто для пристрoя дополнительногo cкладского помещeния. Рядом имеeтcя ТП в 10 метpax а тaк xe имеется возможность подключения природного газа. Что касательно участка то площадь участка составляет 3337 кв.м., по газу есть тех. условия, есть утвержденный проект на подключения газа, газ находится рядом в 30 м. от здания.Торг. Так же рассматриваю аренду можно рассмотреть стоимость улучшения состояния здания в счет арендной платы или другие условия.
1/6
8 500 000 ₽
Складское помещение,  Машиностроителей проспект, 20 ст2
758 м² · 11 206 ₽ за м²
Пpoдаются помещeния, идеальное меcто pасположeние можнo в гopoдe Kуpгане трaнcпоpтная pазвязка во все районe гopода, мoжнo иcпoльзовaть кaк в пpoизводcтвeннoй сфере тaк и в коммерчеcкoй например, складскиe пoмещения и т.д. Тaк же имeютcя aрeндaторы в нескольких помещениях. Так же рассматриваю аренду помещений по 100 руб. за кв.м. в т.ч. с последующим выкупом. Здание находиться на земельном участке площадью 3337 кв. м., земельный участок в собственности. Продажа вместе с земельным участком. На одном земельном участке находиться два обьекта, так же рассматривается продажа всего комплекса это два объекта и земельный участок.
1/13
3 999 000 ₽
Торговые площади,  Советская, 7
Затобольный поселок
76 м² · 52 275 ₽ за м²
Продам помещение под магазин на первой линии в п. Затобольный. Помещение площадью 76,5 кв.м. состоит из торгового зала и подсобных помещений. Требуется проведение ремонта. В торговом зале натяжной потолок. Отопление газовое. Арендаторов нет. Есть земельный участок площадью 10,92 соток, огорожен, туалет на улице. Поселок расположен в территориальных границах г. Кургана, ходит общественный транспорт, остановка рядом с продаваемым помещением. Звоните, расскажу подробности! Код пользователя: 15871 Номер в базе: 9643429
  • 2
  • 3
  • 4
  • 5
  1. Недвижимость в Кургане
  2. Продажа
  3. Коммерческая
  4. 126 объявлений

Может быть полезно

Ипотека

Узнайте за 10 минут, какой кредит вам одобрят банки

Подбор риелтора

Риелтор поможет купить или продать любую недвижимость

Журнал

Куда поехать на Новый год в России в 2026 году Куда поехать на Новый год в России в 2026 году
Как продать квартиру в ипотеке: пошаговая инструкция Как продать квартиру в ипотеке: пошаговая инструкция
Достопримечательности Красноярска и окрестностей: что посмотреть и где погулять Достопримечательности Красноярска и окрестностей: что посмотреть и где погулять
Панорамное остекление в загородном доме: технологии и цены Панорамное остекление в загородном доме: технологии и цены
Самозапрет на кредиты и продажу квартиры: что это, как оформить Самозапрет на кредиты и продажу квартиры: что это, как оформить
Читать все статьи
Продажа коммерческой недвижимости в Кургане
  • по районам
  • Вороновка
  • Восточный район
  • Заозёрный район
  • Западный район
  • Малое Чаусово
  • Октябрьский район
  • Рябково
  • Северный район
  • Центральный район
  • Энергетики
По субъектам области
  • Щучанский район
  • Шумиха
  • с. Кетово
  • Кетовский район
  • Шумихинский район
  • Курганская область
  • Катайский район
  • Шадринск
  • Кетовский муниципальный округ
  • Белозерский муниципальный округ
  • Щучье
  • Далматовский район
  • Катайск
  • Курган
  • Притобольный район

Некоторые материалы настоящего раздела могут содержать информацию, запрещенную для детей, не достигших шести лет.

Информация о возрастных ограничениях в отношении информационной продукции, подлежащая распространению на основании норм Федерального закона «О защите детей от информации, причиняющей вред их здоровью и развитию».

О компанииСправочный центрВакансии
© ООО «Н1.РУ»  Правила использования

Некоторые материалы настоящего раздела могут содержать информацию, запрещенную для детей, не достигших шести лет.

Информация о возрастных ограничениях в отношении информационной продукции, подлежащая распространению на основании норм Федерального закона «О защите детей от информации, причиняющей вред их здоровью и развитию».

Новостройки
Студии
Однокомнатные
Двухкомнатные
Трехкомнатные
Четырехкомнатные
Многокомнатные
Каталоги
Выделение цветом
Спецпредложение
Топ
Турбо
Вторичка
Однокомнатные
Комнаты
Студии
Коттеджи
Дома
Аренда недвижимости
Квартиры
Комнаты
Студии
Коттеджи
Дома
Города
Архангельск
Екатеринбург
Красноярск
Новосибирск
Омск
Пермь
Тюмень
Челябинск
Все города
Карта сайта
 Купите коммерческую недвижимость в Кургане - 126 объявлений в каталоге коммерческой недвижимости на N1. Средняя цена продажи или покупки составляет 25,4 млн ₽. Покупайте коммерческую недвижимость недорого на сайте N1.ru.