3-к, Гаражно-строительный кооператив N 184 территория, 7 корп. 2 Показать на карте
Курган
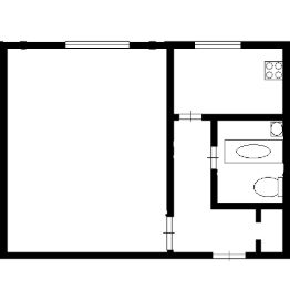
Трехкомнатная квартира с предчистовой отделкой в ЖК ''Малиновые высоты'' на 12 этаже. Дом монолитный, двух подъездный. На этаже от 5 до 12 квартир. Окончание строительства - 3 квартал 2026 года. Оформление сделки по договору долевого участия. ЖК ''Малиновые высоты'' располагается в районе озера Левашово в удалении от загруженных городских улиц, пробок и пыли. Идеальное место для тех, кто следит за собой, стремится быть активным и продуктивным, придерживается принципов разумного потребления и думает о здоровье и благополучии близких. Все квартиры готовы к чистовому ремонту, все грязные работы уже сделаны - выравнивание стен и пола, разводка электрики и остекление лоджий. Хранить велосипеды, снегокаты и санки можно в колясочных, они есть в каждом доме. Также на первых этажах оборудованы туалетные комнаты и лапомойни для домашних животных. Проектом предусмотрены закрытые дворы без машин, а парковки расположатся за пределами дворов и игровых зон. На территории ЖК будут функционировать сквер и парк. Для проведения досуга. Круглосуточное видеонаблюдение по всей территории, экологически чистые материалы, благоприятная роза ветров, безопасные детские площадки, свежий лесной воздух.
78 м2
12 / 12 этаж
Кирпич - монолит
- Показать контакты
- Добавить в избранное
78 м2
12 / 12 этаж
Кирпич - монолит
8 890 000
112 918 /м2
Новостройка,
I-2026
I-2026
