Если цена в объявлении изменится, мы сразу сообщим вам об этом на электронную почту.
Нажимая «Подписаться», вы соглашаетесь с правилами.
продам дом, СНТ Земляничная поляна территория, 4643 880 000 ₽
28 фев
Дата публикации объявления
Обн. 31 мар
Дата обновления объявления
1
Количество просмотров (+ просмотры за сегодня)
53 444 ₽/м²
Чистая продажа
Термин "Чистая продажа" означает, что в квартире никто не прописан или
есть куда выписаться и вывезти вещи. Это лучший вариант для покупателя.
Вероятность срыва сделки минимальна.
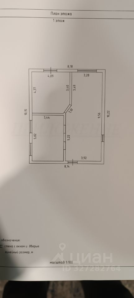
Этажей1
Площадь участка8 соток
Общая площадь72,6 м2
ЭлектричествоЕсть
Газоснабжениецентральное
Продается недостроенный дом в СНТ Земляничная поляна. Дом построен из газоблоков 300мм. на плитном фундаменте 8*10м. Все коммуникации выведены. Крыша из металлочерепицы. Сделан черновой потолок. Установлены хорошие окна( ламинированные со стороны улицы Графит) Профиль окон и дверей 70мм. , стеклопакеты 40мм. mf. Входная дверь тонирована. С противоположной стороны установлен панорамный выход. Дом зарегистрирован. Городская прописка. Само СНТ находится рядом с городом( 5-7 мин. от Заозерного). Участок ровный. Находится на первой линии. Есть несколько деревьев. Трава скошена. На въезде в СНТ установлен шлагбаум. Дороги широкие(разъезжаются 2 машины). В зимнее время дороги регулярно чистятся. Есть уличное освещение, интернет. Так же на въезде есть минимаркет.
Продается недостроенный дом в СНТ Земляничная поляна. Дом построен из газоблоков 300мм. на плитном фундаменте 8*10м. Все коммуникации выведены. Крыша из металлочерепицы. Сделан черновой потолок. Установлены хорошие окна( ламинированные со стороны улицы Графит) Профиль окон и дверей 70мм. , стеклопакеты 40мм. mf. Входная дверь тонирована. С противоположной стороны установлен панорамный выход. Дом зарегистрирован. Городская прописка. Само СНТ находится рядом с городом( 5-7 мин. от Заозерного). Участок ровный. Находится на первой линии. Есть несколько деревьев. Трава скошена. На въезде в СНТ установлен шлагбаум. Дороги широкие(разъезжаются 2 машины). В зимнее время дороги регулярно чистятся. Есть уличное освещение, интернет. Так же на въезде есть минимаркет. На участок заведено электричество 15 кВт. Газ идёт вдоль участка(с подключением проблем не будет). Участок огорожен с одной стороны(делали совместно с соседями). Собственник.