Код лота: РАД-446714. Реализуется на торгах.
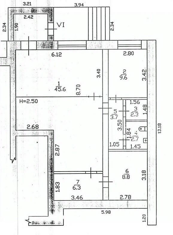
Реализация через аукцион! Нежилое помещение, площадью 79 кв. м. , этаж 1, кадастровый номер 45:26:050217:319, расположенное в многоквартирном доме. Наличие обременений: не зарегистрировано. Имеется действующий договор аренды от 20. 07. 2022г. на площадь 79 кв. м. В настоящее время договор аренды в процессе расторжения по инициативе арендатора. Адрес: Курганская область, г. Шадринск, ул. Кооперативная, д. 6. Возможен вариант предоставления права аренды на данный объект!
https://catalog. lot-online. ru/index. php?dispatch=products. view&product_id=1598317










